新築一戸建 全1棟【FiT稲城市矢野口1期】★京王相模原線「京王よみうりランド駅徒歩4分」・JR南武線「矢野口」駅徒歩17分!!
| 所在地 | 稲城市矢野口 | ||
| 交通 | 京王相模原線「京王よみうりランド駅徒歩4分」 JR南武線「矢野口」駅徒歩17分 | ||
| 価格 | 成約済 | ||
| 土地面積 | 102.84㎡ | ||
| 建物面積 | 82.22㎡ | ||
| 構造 | 木造二階建 | ||
| 築年月 | 2022年11月上旬予定 | ||
| 土地権利 | 所有権 | 地目 | 宅地 |
| 建ぺい率 | 40% | 容積率 | 80% |
| 都市計画 | 市街化区域 | 用途地域 | 第一種低層住居専用地域 |
| 接道 | 東側幅員4m | 引渡し | 相談 |
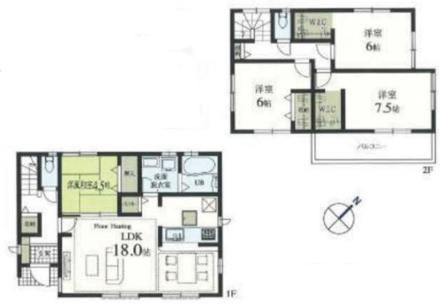
| 間取り | 4LDK | 駐車場 | 有 |
| 設備 | 公営管・本下水・オール電化・宅内浸透(個別浸透マス) | ||
| 備考 | 防火指定:指定なし 高度地区:第一種高度地区 その他規制;法第22条区域、下水道処理区域、高さの最高限度10m、日影規制3-2h 1.5m ◎稲城第七小学校まで徒歩8分(約640m)とお子様の通学も安心。リビング階段もあり、ご家族のコミュニケーションが増えるお家です。 ◎じんわり温かい床暖房、非常時も優しいオール電化、備わってます。 ◎2部屋に渡る幅広バルコニー 南向きで日当たりも良好。 ◎2階の北側洋室はお子様の成長に合わせて後から壁を設置し個室にすることも可能です。 ◎4~5人分の食器が一度に洗える食洗機が標準装備です。 ◎リビング学習やリモートワークに利用できるスタディーカウンター。 ◎浴室はUBエコベンチ仕様で節水できます。 ~売主~ 株式会社旭ハウジング ~近隣駅 乗降客数・距離~ No・路線名・駅名・調査年・乗降客数・直線距離(m) 1 京王電鉄相模原線 京王よみうりランド 2018 14,145 127 2 南武線 矢野口 2018 20,570 918 3 京王電鉄相模原線 京王稲田堤 2018 56,125 1,172 4 南武線 稲田堤 2018 52,840 1,534 5 京王電鉄相模原線 稲城 2018 21,405 1,676 6 南武線 稲城長沼 2018 16,180 1,866 7 京王電鉄相模原線 京王多摩川 2018 17,556 2,043 8 小田急電鉄小田原線 読売ランド前 2018 36,665 2,260 9 小田急電鉄小田原線 百合ヶ丘 2018 21,324 2,741 10 京王電鉄京王線 西調布 2018 17,550 2,812 11 小田急電鉄小田原線 生田 2018 45,816 2,942 12 南武線 中野島 2018 29,994 2,983 13 京王電鉄京王線 飛田給 2018 29,800 2,987 14 西武鉄道多摩川線 競艇場前 2018 2,907 3,052 15 京王電鉄京王線,京王電鉄相模原線 調布 2018 129,031 3,100 ~近隣公示地価・基準地価~ ① 標準地番号 稲城-26 調査基準日 2022/1/1 住居表示 所在並びに地番 東京都稲城市大字矢野口字松葉1915番54 交通施設、距離 京王よみうりランド 550m 用途区分 準工業地域 利用現況 住宅 周辺の土地の利用現況 一般住宅が建ち並ぶ区画整然とした住宅地域 価格 271,000(円/㎡) 地積 105(㎡) 前面道路の状況 北西 6.0m 市道 形状(間口:奥行き) 1.0(%) 1.5(%) その他の接面道路 建物構造 LS 給排水等状況 水道 下水 建ぺい率(%)/容積率(%) 60/200 法規制 準防火地域,市街化区域 ② 標準地番号 稲城-12 調査基準日 2022/1/1 住居表示 所在並びに地番 東京都稲城市大字矢野口字松葉1749番4外 交通施設、距離 京王よみうりランド 430m 用途区分 第二種中高層住居専用地域 利用現況 住宅,その他 周辺の土地の利用現況 一般住宅、アパート、事業所が混在する住宅地域 価格 270,000(円/㎡) 地積 158(㎡) 前面道路の状況 南西 5.0m 市道 形状(間口:奥行き) 1.0(%) 2.0(%) その他の接面道路 背面道 建物構造 S 給排水等状況 ガス 水道 下水 建ぺい率(%)/容積率(%) 60/200 法規制 準防火地域,市街化区域 ③ 標準地番号 稲城-3 調査基準日 2021/7/1 住居表示 東京都稲城市大字矢野口字松葉2099番8外 所在並びに地番 交通施設、距離 京王よみうりランド 700m 用途区分 第一種低層住居専用地域 利用現況 住宅 周辺の土地の利用現況 中小規模の一般住宅が多い住宅地域 価格 229,000(円/㎡) 地積 163(㎡) 前面道路の状況 南西 4.0m 市区町村道 形状(間口:奥行き) 1.0(%) 1.5(%) その他の接面道路 建物構造 W 給排水等状況 ガス 水道 下水 建ぺい率(%)/容積率(%) 40/80 法規制 市街化区域,高度地区 ④ 標準地番号 川崎多摩-18 調査基準日 2022/1/1 住居表示 菅城下15-11 所在並びに地番 神奈川県川崎市多摩区菅城下259番5 交通施設、距離 京王稲田堤 900m 用途区分 第一種中高層住居専用地域 利用現況 住宅 周辺の土地の利用現況 一般住宅、アパート等が混在する住宅地域 価格 233,000(円/㎡) 地積 102(㎡) 前面道路の状況 北西 4.0m 市道 形状(間口:奥行き) 1.0(%) 1.5(%) その他の接面道路 建物構造 W 給排水等状況 ガス 水道 下水 建ぺい率(%)/容積率(%) 60/200 法規制 準防火地域,市街化区域 ~周辺施設~ ■交通(駅・バス停) 最寄駅 京王相模原線/京王よみうりランド駅 出口 568 m 利用駅 南武線/矢野口駅 南口 1.4 km バス停 小田急バス/京王よみうりランド駅 592 m ■スーパー・コンビニ等 sanwaアメリア稲城三和ランド通り店 667 m ローソンLTFよみうりランド駅前店 242 m ローソン・スリーエフよみうりランド駅前店 243 m マツモトキヨシアメリア稲城店 543 m ダイソーアメリア稲城SC店 663 m さわやか信用金庫矢野口支店 600 m 京王コインパークよみうりランド 517 m ■ショッピング施設 京王リトナード稲城 2.1 km アメリア稲城ショッピングセンター 660 m イオンタウン稲城長沼 2.0 km DCMくろがねや稲城押立店 2.2 km DCMくろがねや調布店 2.7 km ケーズデンキイオンタウン稲城長沼店 2.0 km ハニーズ稲城店 655 m サーティワンアイスクリームアメリア稲城ショッピングセンター店 659 m ユニクロ稲城矢野口店 1.0 km ファーストキッチン稲城アメリアショッピングセンター店 660 m ■病院 内科 かじわら内科・泌尿器科クリニック 890 m 消化器科 こせき内科クリニック 1.3 km 小児科 かじわら内科・泌尿器科クリニック 890 m 眼科 しのづか眼科 1.4 km 耳鼻咽喉科 耳鼻咽喉科青藍クリニック 1.2 km 皮膚科 かじわら内科・泌尿器科クリニック 890 m 泌尿器科 かじわら内科・泌尿器科クリニック 890 m 歯科病院 あらい歯科医院 255 m ■介護施設 療養型病院 よみうりランド慶友病院 1.2 km 有料老人ホーム そんぽの家 稲城矢野口 613 m ■幼稚園・保育園・小中学区等 矢の口幼稚園 554 m 松葉保育園 371 m 青葉幼稚園 1.0 km 認定こども園子どもの森(こども園) 585 m 京王キッズプラッツよみうりランド 714 m 稲城第七小学校 446 m 稲城第三中学校 1.3 km 菅中学校 652 m ■公共施設 稲城市役所 1.7 km 松葉公園 662 m 稲城市平尾出張所 5.2 km ふれあいちびっこ広場 747 m 稲城市若葉台出張所 5.6 km 下塚戸ちびっ子広場 1.0 km 多摩中央警察署矢野口交番 1.1 km | ||
| 建築確認番号 | 第22UDI1S建02209号 | ||
| 取引態様 | 仲介 | 更新日 | 2022-08-13 |
| 更新予定日 | 上記の更新日より2週間 (広告有効期限) | ||
